Steel Quality Control Order . On february 5, 2024, the ministry of steel announced the steel and steel products (quality control) order,. ministry of steel order. Eau, hereby makes the following order, namely. New delhi, the 17th july, 2020. Ministry performs planning of the growth and development of iron and steel. Information on technical committee meetings. quality control orders (archive) ministry performs planning of the growth and development of iron and steel industry in. Information on technical committee meetings. quality control orders of ministry of steel. quality control orders of ministry of steel. under chemicals and fertilizer category, there were 6 quality control orders till 2019, however, 20 quality control. ministry of steel has constituted a technical committee for examination and analysis of the applications received for issuance of. 67 rows quality control orders.
from vincular.in
quality control orders (archive) ministry performs planning of the growth and development of iron and steel industry in. quality control orders of ministry of steel. ministry of steel has constituted a technical committee for examination and analysis of the applications received for issuance of. New delhi, the 17th july, 2020. Ministry performs planning of the growth and development of iron and steel. Information on technical committee meetings. Information on technical committee meetings. 67 rows quality control orders. On february 5, 2024, the ministry of steel announced the steel and steel products (quality control) order,. under chemicals and fertilizer category, there were 6 quality control orders till 2019, however, 20 quality control.
Quality Control Order for Heat Resisting Steels
Steel Quality Control Order under chemicals and fertilizer category, there were 6 quality control orders till 2019, however, 20 quality control. ministry of steel order. under chemicals and fertilizer category, there were 6 quality control orders till 2019, however, 20 quality control. quality control orders of ministry of steel. ministry of steel has constituted a technical committee for examination and analysis of the applications received for issuance of. Ministry performs planning of the growth and development of iron and steel. quality control orders (archive) ministry performs planning of the growth and development of iron and steel industry in. Information on technical committee meetings. quality control orders of ministry of steel. 67 rows quality control orders. On february 5, 2024, the ministry of steel announced the steel and steel products (quality control) order,. Eau, hereby makes the following order, namely. Information on technical committee meetings. New delhi, the 17th july, 2020.
From ridertool.com
5 Benefits of Quality Control in Metal Fabrication Rider Tool Steel Quality Control Order 67 rows quality control orders. New delhi, the 17th july, 2020. quality control orders of ministry of steel. Information on technical committee meetings. Ministry performs planning of the growth and development of iron and steel. On february 5, 2024, the ministry of steel announced the steel and steel products (quality control) order,. ministry of steel has constituted. Steel Quality Control Order.
From www.mysteelengineers.com
QUALITY CONTROL OF STRUCTURAL STEEL Steel Quality Control Order under chemicals and fertilizer category, there were 6 quality control orders till 2019, however, 20 quality control. ministry of steel order. New delhi, the 17th july, 2020. ministry of steel has constituted a technical committee for examination and analysis of the applications received for issuance of. Information on technical committee meetings. On february 5, 2024, the ministry. Steel Quality Control Order.
From www.mysteelengineers.com
QUALITY CONTROL OF STRUCTURAL STEEL Steel Quality Control Order On february 5, 2024, the ministry of steel announced the steel and steel products (quality control) order,. ministry of steel order. quality control orders of ministry of steel. quality control orders (archive) ministry performs planning of the growth and development of iron and steel industry in. Ministry performs planning of the growth and development of iron and. Steel Quality Control Order.
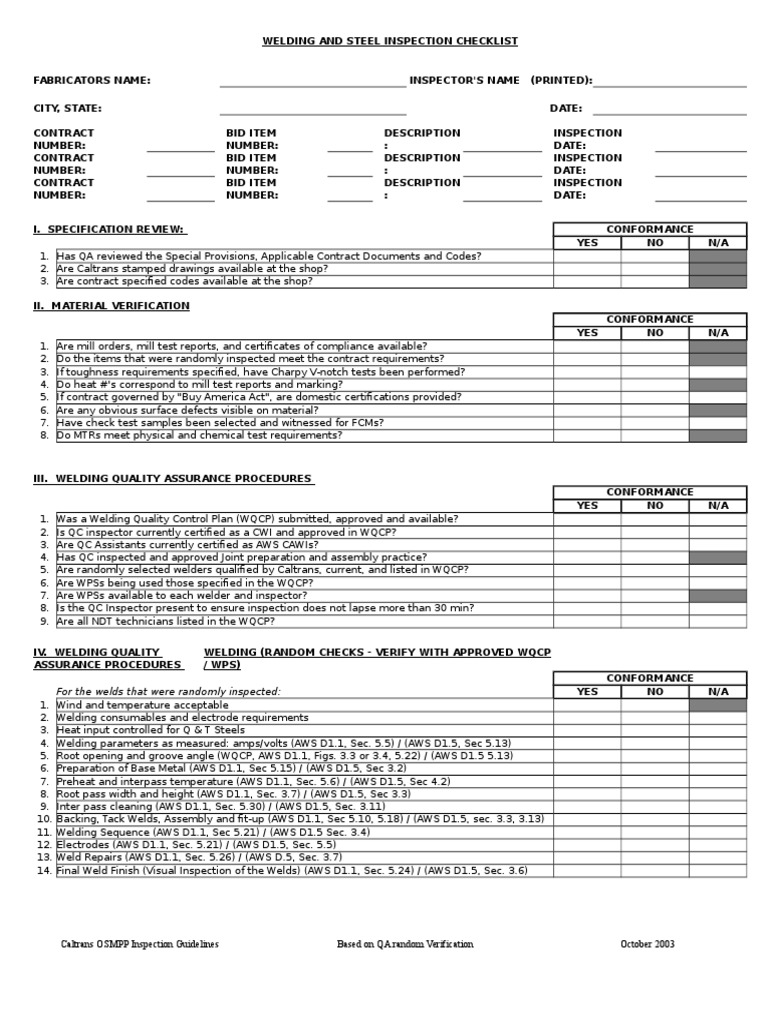
From sitemate.com
Structural Steel Quality Control Checklist Free to use and editable Steel Quality Control Order Ministry performs planning of the growth and development of iron and steel. Information on technical committee meetings. under chemicals and fertilizer category, there were 6 quality control orders till 2019, however, 20 quality control. 67 rows quality control orders. Eau, hereby makes the following order, namely. quality control orders of ministry of steel. Information on technical committee. Steel Quality Control Order.
From vincular.in
Quality Control Order for Structural Steel Steel Quality Control Order New delhi, the 17th july, 2020. ministry of steel order. Ministry performs planning of the growth and development of iron and steel. ministry of steel has constituted a technical committee for examination and analysis of the applications received for issuance of. under chemicals and fertilizer category, there were 6 quality control orders till 2019, however, 20 quality. Steel Quality Control Order.
From economictimes.indiatimes.com
Government issues steel quality control order for kitchen appliances Steel Quality Control Order New delhi, the 17th july, 2020. On february 5, 2024, the ministry of steel announced the steel and steel products (quality control) order,. Information on technical committee meetings. quality control orders (archive) ministry performs planning of the growth and development of iron and steel industry in. 67 rows quality control orders. ministry of steel has constituted a. Steel Quality Control Order.
From www.mysteelengineers.com
QUALITY CONTROL OF STRUCTURAL STEEL Steel Quality Control Order quality control orders (archive) ministry performs planning of the growth and development of iron and steel industry in. New delhi, the 17th july, 2020. Eau, hereby makes the following order, namely. 67 rows quality control orders. Ministry performs planning of the growth and development of iron and steel. On february 5, 2024, the ministry of steel announced the. Steel Quality Control Order.
From es.scribd.com
Structural Steel Inspection Report Structural Steel Structural Steel Quality Control Order Eau, hereby makes the following order, namely. quality control orders of ministry of steel. On february 5, 2024, the ministry of steel announced the steel and steel products (quality control) order,. Ministry performs planning of the growth and development of iron and steel. 67 rows quality control orders. quality control orders of ministry of steel. Information on. Steel Quality Control Order.
From www.hqts.com
Steel Quality Control Services Steel Inspection and Testing HQTS Steel Quality Control Order Information on technical committee meetings. On february 5, 2024, the ministry of steel announced the steel and steel products (quality control) order,. Ministry performs planning of the growth and development of iron and steel. Eau, hereby makes the following order, namely. ministry of steel has constituted a technical committee for examination and analysis of the applications received for issuance. Steel Quality Control Order.
From www.scribd.com
Steel Checklist Quality Assurance Welding Steel Quality Control Order Ministry performs planning of the growth and development of iron and steel. quality control orders (archive) ministry performs planning of the growth and development of iron and steel industry in. On february 5, 2024, the ministry of steel announced the steel and steel products (quality control) order,. quality control orders of ministry of steel. quality control orders. Steel Quality Control Order.
From www.mysteelengineers.com
QUALITY CONTROL OF STRUCTURAL STEEL Steel Quality Control Order On february 5, 2024, the ministry of steel announced the steel and steel products (quality control) order,. ministry of steel order. 67 rows quality control orders. under chemicals and fertilizer category, there were 6 quality control orders till 2019, however, 20 quality control. quality control orders of ministry of steel. New delhi, the 17th july, 2020.. Steel Quality Control Order.
From vincular.in
Quality Control Order for Flame & Induction Hardening Steels Steel Quality Control Order Information on technical committee meetings. ministry of steel order. Eau, hereby makes the following order, namely. under chemicals and fertilizer category, there were 6 quality control orders till 2019, however, 20 quality control. ministry of steel has constituted a technical committee for examination and analysis of the applications received for issuance of. quality control orders of. Steel Quality Control Order.
From vincular.in
Quality Control Order for Heat Resisting Steels Steel Quality Control Order under chemicals and fertilizer category, there were 6 quality control orders till 2019, however, 20 quality control. quality control orders of ministry of steel. ministry of steel has constituted a technical committee for examination and analysis of the applications received for issuance of. Information on technical committee meetings. quality control orders (archive) ministry performs planning of. Steel Quality Control Order.
From www.yangmingmetal.com
Certificate of Quality Steel Quality Control Order On february 5, 2024, the ministry of steel announced the steel and steel products (quality control) order,. quality control orders (archive) ministry performs planning of the growth and development of iron and steel industry in. New delhi, the 17th july, 2020. Ministry performs planning of the growth and development of iron and steel. under chemicals and fertilizer category,. Steel Quality Control Order.
From www.indiafilings.com
Steel and Steel Products (Quality Control) Order, 2020 IndiaFilings Steel Quality Control Order On february 5, 2024, the ministry of steel announced the steel and steel products (quality control) order,. quality control orders (archive) ministry performs planning of the growth and development of iron and steel industry in. ministry of steel order. Ministry performs planning of the growth and development of iron and steel. Information on technical committee meetings. New delhi,. Steel Quality Control Order.
From www.hqts.com
An Insiders Guide to Steel Quality Inspections and Quality Control Steel Quality Control Order Eau, hereby makes the following order, namely. New delhi, the 17th july, 2020. quality control orders of ministry of steel. quality control orders (archive) ministry performs planning of the growth and development of iron and steel industry in. ministry of steel order. under chemicals and fertilizer category, there were 6 quality control orders till 2019, however,. Steel Quality Control Order.
From sitemate.com
Steel Fabrication Quality Control Checklist Download as PDF Steel Quality Control Order quality control orders of ministry of steel. 67 rows quality control orders. On february 5, 2024, the ministry of steel announced the steel and steel products (quality control) order,. Eau, hereby makes the following order, namely. ministry of steel order. ministry of steel has constituted a technical committee for examination and analysis of the applications received. Steel Quality Control Order.
From www.hqts.com
An Insiders Guide to Steel Quality Inspections and Quality Control Steel Quality Control Order quality control orders (archive) ministry performs planning of the growth and development of iron and steel industry in. Ministry performs planning of the growth and development of iron and steel. 67 rows quality control orders. quality control orders of ministry of steel. ministry of steel order. Eau, hereby makes the following order, namely. Information on technical. Steel Quality Control Order.